
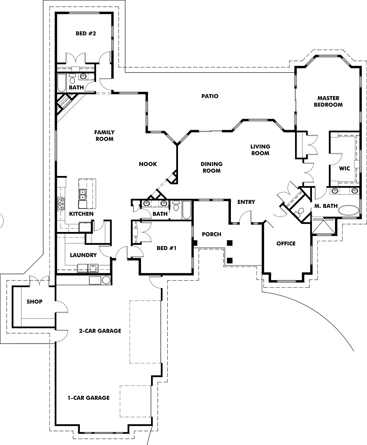
The Canyon is a 3,330 sf single story home with 3 Bedrooms and 3 baths. This plan features a formal living room, family room, and dining room. The spacious master bedroom has a large bathroom and closet area, with two additional bedrooms and their own bathroom. The open kitchen has all the amenities including a walk-in pantry and is conveniently located next to the laundry room area. This plan also features a large 3-car garage, attached shop, and large porch and patio areas.
