
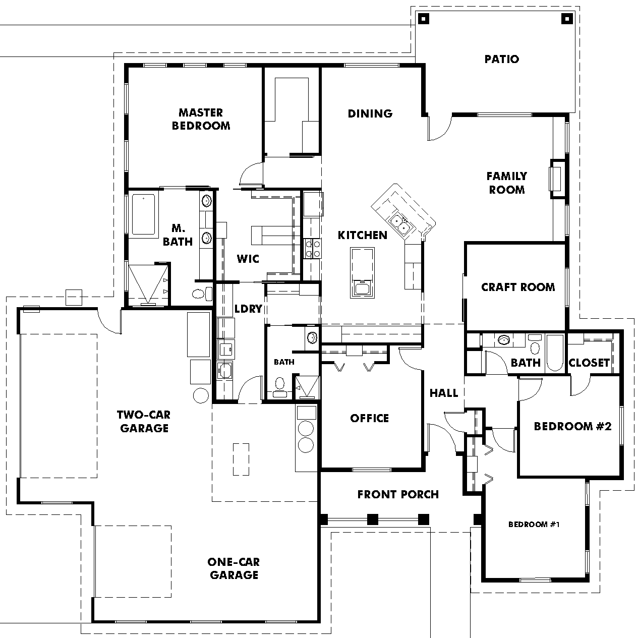
The Silver Sage is a beautiful and functional 2,716 sf single story home, with 4 Bedrooms and 3 baths. This home features an open plan with a family room, kitchen, and dining room. The spacious master bedroom has a large bathroom and closet area that leads to the laundry room. The office could be a 3rd bedroom and there is also a separate craft room. This plan also features a 3rd bathroom off the mud / laundry room area, a large 3-car garage, front porch, and covered back patio.
